*Fotografiile și videoclipurile sunt orientative, produs vândut în lemn natural, fără culori. Vă rugăm consultați instrucțiunile de asamblare.
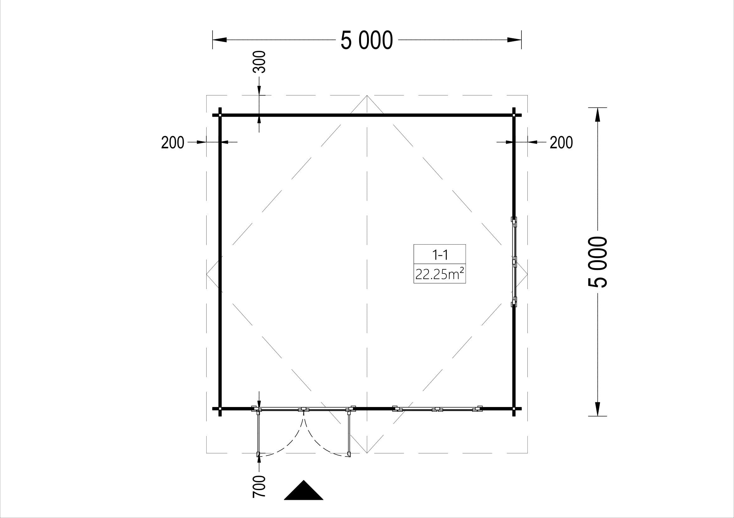
Casa de gradina IRIS (44 mm), 5×5 m, 25 m²
Ai un sentiment de ospitalitate; iti place sa organizezi petreceri cu prietenii; sunteti intotdeauna gata sa intampinati pe cei dragi, dar in interiorul casei dvs. ramaneti fara spatiu. Prin urmare, modelul IRIS este elementul ideal pentru dumneavoastra. Aceasta casa este cea mai mare din categoria sa. Va veti putea stabili in largul vostru. Pat, living mic sau bucatarie, spatiul sau va permite sa oferiti tot confortul oaspetilor dvs.
Livrarea in 8-9 saptamani
Pretul include
Oferta mai avantajoasa?
Descriere
Adapostul IRIS, cu o suprafata de 25 m2, este ideal daca sunteti in cautarea unei solutii de depozitare. Acest model beneficiaza de o buna rezistenta: este fabricat din pin nordic natural, o esenta cunoscuta pentru rezistenta si caldura sa. Puteti alege utilizarea magaziei de gradina din lemn in functie de nevoile dumneavoastra. Desigur, este posibil sa il folositi ca depozit. Dar il poti transforma si intr-un adevarat atelier sau intr-o camera dedicata relaxarii si relaxarii! Un lucru este sigur: nu veti regreta achizitia, deoarece garantam calitatea produselor noastre!
Specificatii
| Dimensiuni ferestre | |
|---|---|
| Înalțime la coamă | |
| Grosime perete | |
| Material | |
| Material acoperiș | |
| Material de podea | |
| Număr de camere | |
| Suprafață acoperiș | |
| Suprafață totală | |
| Ușă (lățime x înălțime) | |
| Material invelitoare | |
| Înălţime pereți | |
| Panta acoperișului |
Calitate si beneficii

Întăriri anti furtună incluse
Structuri rezistente la furtuni pentru toate garajele și depozitele. Construcția va fi mai stabilă la vânturi puternice sau furtuni violente.

Pereții opuși sunt interschimbabili!
Majoritatea caselor noastre au ziduri opuse interschimbabile. Doriți să plasați fereastra din stânga pe partea dreaptă? Nimic mai simplu!

Geam dublu
Pentru toate modelele cu o grosime a peretelui de 44 mm, oferim gratuit ferestre și uși cu geam termopan.

Construim avand grija de natura
Casele noastre sunt realizate cu cherestea din păduri certificate FSC. Achiziționând unul dintre produsele noastre, puteți fi siguri că nicio pădure nu a fost deteriorată.
Vezi toate calitatile
Asamblarea nu necesită neapărat multe cuie, șuruburi … Feroneria necesara pentru asamblare va fi la dispoziția dumneavoastră într-o pungă de plastic. Toate casele și casuțele noastre sunt echipate cu o podea groasă de 20 mm. Doar garajele sunt livrate fără podea.
Feronerie inclusa

Podea inclusa (cu excepția garajelor)
Grinzile noastre tratate in autoclave de 70 mm x 50 mm oferă o bază solidă,fiind o condiție esențială pentru a garanta longevitatea structurii dvs. Grinzile sunt prevăzute pentru modelele cu podea. Structură din lemn dubla cu izolație interioară.
Fundație de calitate garantată

Structură dublă izolată
Atenție
Unele produse pot necesita autorizație de la primăria dumneavoastră. Prin urmare, vă rugăm să întrebați în prealabil la biroul tehnic local. Vă rămânem la dispoziție pentru informații suplimentare despre documentația care trebuie prezentată. Contactați-ne la numărul suprapus!
Garanție și asistență
Geamuri duble gratuite pentru clădiri și mai puternice! Acoperiș și pardoseală cu Nut și Feder inclus pentru rezistență durabilă. Calitate garantată. Pereții opuși sunt interschimbabili. carcasă interioară solidă și robustă pentru un acoperiș mult mai sigur. Încuietori sigure și balamale rezistente Folosim doar sticlă de calitate – fără plastic! Livrare convenabilă, calitate dovedită, servicii atente și utile pentru clienți.
Serviciul pentru clienți este disponibil în fiecare zi de luni până vineri, de la 8:00 la 17:00. Vă garantăm un serviciu complet pentru orice problemă care apare înainte și după livrare. Vom înlocui sau repara orice piese defecte sau lipsă. Dacă aveți îndoieli cu privire la modul de montare a casei dvs., ne puteți contacta oricând și vă vom ajuta să găsiți cea mai bună soluție. Serviciul este complet și la dispoziția dvs. de la acoperiș până la ultimul șurub de înșurubat!
Instrucțiuni de asamblare
Aveți nevoie de ajutor pentru asamblare?
Partenerii noștri de asamblare cu înaltă calificare vor fi bucuroși să instaleze pentru dvs. orice clădire din gama noastră. Vă rugăm să rețineți că prețul instalării este plătibil direct profesioniștilor montanți după finalizarea instalării.
Toate piesele sunt marcate cu precizie pentru a facilita identificarea cărei părți aparține.






