*Fotografiile și videoclipurile sunt orientative, produs vândut în lemn natural, fără culori. Vă rugăm consultați instrucțiunile de asamblare.
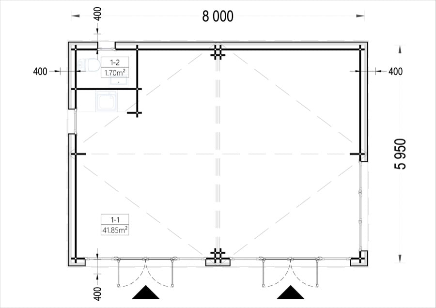
Casa izolata Litoral , 8×6 m, 48 m²
Casa izolată lemn de pin nordic LITORAL Modern, cu placarea exterioara moderna si eleganta, va ofera multe posibilitati pentru a va amenaja spatiul interior al casei dupa cum doriti. Datorita spatiului sau deschis, LITORAL Modern este un model cu adevarat multifunctional, care iti permite sa implementezi toate ideile tale de design interior si sa creezi locul visurilor tale. Pentru confortul dumneavoastra, este disponibila si o versiune izolata a acestui model.
Livrarea in 8-9 saptamani
Pretul include
Oferta mai avantajoasa?
Descriere
Punctele forte ale modelului casa izolată moderna Litoral (44 mm + placare)
Izolație inclusă : 10 cm la pereți, acoperiș si podea.Se poate realiza orice grosime de izolație.
• Doua usi duble si ferestre mari ofera o perspectiva splendida si in acelasi timp multa lumina naturala.
• Fatada eleganta, oferind un aspect contemporan
• O zona de baie separata
Ne-am straduit sa cream structura care sa reuneasca familia si prietenii, oferind o atmosfera relaxata si placuta.
Fie ca va fi o anexa cu scop Horeca sau o sala de sport, aceasta cladire va satisface pe deplin nevoile beneficiarilor.
Construcția de 44 + 20 mm este perfect potrivită și pentru clădirile rezidențiale mai mari, deoarece cuprinde o construcție multistrat fiabilă și groasă (perete de 44 mm grosime în interior ca finisaj, cadrul din lemn, două straturi de grinzi de lemn și exteriorul finalizarea).
Va stam la dispozitie pentru intrebari ,detalii sau cereri de personalizari ale proiectelor noastre.
Pentru o discutie fata in fata va asteptam la showroom in Bld Poligrafiei 52-54 Bucuresti Sector 1.
Toate modelele noastre sunt fabricate din Pin Nordic, iar fiecare piesa este debitata, cu mare precizie, si etichetata in fabrica computerizata.
Manualul de asamblare este foarte facil de interpretat, constructia se poate edifica de persoane fara experienta in domeniu si dornici de a-si edifica singuri viitoarea structura din lemn.
Daca sunteti interesati de o solutie de fundare nepermanenta, veti gasi pe blog articole de referinta.
Pentru a vedea o lista cu alte kit-uri de case, cu aspect modern, pregatite sa fie izolate termic click aici
Va stam la dispozitie pentru intrebari ,detalii sau cereri de personalizari ale proiectelor noastre.
Pentru detalii despre constructiile noastre din lemn si tipurile de pereti, click aici: Tipuri de pereti
Va recomandam si alte modele similare aici
Specificatii
| Material acoperiș | |
|---|---|
| Grosime pereți | |
| Material de podea | Placi de grosime 18-20 mm (Nut și Feder inclus), izolatie 100 mm XPS |
| Material invelitoare | Optional, sindrila bituminosa, tabla faltuita, tigla metalica |
| Suprafață acoperiș | |
| Dimensiuni ferestre | |
| Înalțime la coamă | |
| Material | |
| Suprafață totală | |
| Ușă (lățime x înălțime) | |
| Dimensiuni externe | |
| Înălţime pereți | |
| Panta acoperișului | |
| Sageac |
Calitate si beneficii

Întăriri anti furtună incluse
Structuri rezistente la furtuni pentru toate garajele și depozitele. Construcția va fi mai stabilă la vânturi puternice sau furtuni violente.

Pereții opuși sunt interschimbabili!
Majoritatea caselor noastre au ziduri opuse interschimbabile. Doriți să plasați fereastra din stânga pe partea dreaptă? Nimic mai simplu!

Geam dublu
Pentru toate modelele cu o grosime a peretelui de 44 mm, oferim gratuit ferestre și uși cu geam termopan.

Construim avand grija de natura
Casele noastre sunt realizate cu cherestea din păduri certificate FSC. Achiziționând unul dintre produsele noastre, puteți fi siguri că nicio pădure nu a fost deteriorată.
Vezi toate calitatile
Asamblarea nu necesită neapărat multe cuie, șuruburi … Feroneria necesara pentru asamblare va fi la dispoziția dumneavoastră într-o pungă de plastic. Toate casele și casuțele noastre sunt echipate cu o podea groasă de 20 mm. Doar garajele sunt livrate fără podea.
Feronerie inclusa

Podea inclusa (cu excepția garajelor)
Grinzile noastre tratate in autoclave de 70 mm x 50 mm oferă o bază solidă,fiind o condiție esențială pentru a garanta longevitatea structurii dvs. Grinzile sunt prevăzute pentru modelele cu podea. Structură din lemn dubla cu izolație interioară.
Fundație de calitate garantată

Structură dublă izolată
Atenție
Unele produse pot necesita autorizație de la primăria dumneavoastră. Prin urmare, vă rugăm să întrebați în prealabil la biroul tehnic local. Vă rămânem la dispoziție pentru informații suplimentare despre documentația care trebuie prezentată. Contactați-ne la numărul suprapus!
Garanție și asistență
Geamuri duble gratuite pentru clădiri și mai puternice! Acoperiș și pardoseală cu Nut și Feder inclus pentru rezistență durabilă. Calitate garantată. Pereții opuși sunt interschimbabili. carcasă interioară solidă și robustă pentru un acoperiș mult mai sigur. Încuietori sigure și balamale rezistente Folosim doar sticlă de calitate – fără plastic! Livrare convenabilă, calitate dovedită, servicii atente și utile pentru clienți.
Serviciul pentru clienți este disponibil în fiecare zi de luni până vineri, de la 8:00 la 17:00. Vă garantăm un serviciu complet pentru orice problemă care apare înainte și după livrare. Vom înlocui sau repara orice piese defecte sau lipsă. Dacă aveți îndoieli cu privire la modul de montare a casei dvs., ne puteți contacta oricând și vă vom ajuta să găsiți cea mai bună soluție. Serviciul este complet și la dispoziția dvs. de la acoperiș până la ultimul șurub de înșurubat!
Instrucțiuni de asamblare
Aveți nevoie de ajutor pentru asamblare?
Partenerii noștri de asamblare cu înaltă calificare vor fi bucuroși să instaleze pentru dvs. orice clădire din gama noastră. Vă rugăm să rețineți că prețul instalării este plătibil direct profesioniștilor montanți după finalizarea instalării.
Toate piesele sunt marcate cu precizie pentru a facilita identificarea cărei părți aparține.






