*Fotografiile și videoclipurile sunt orientative, produs vândut în lemn natural, fără culori. Vă rugăm consultați instrucțiunile de asamblare.
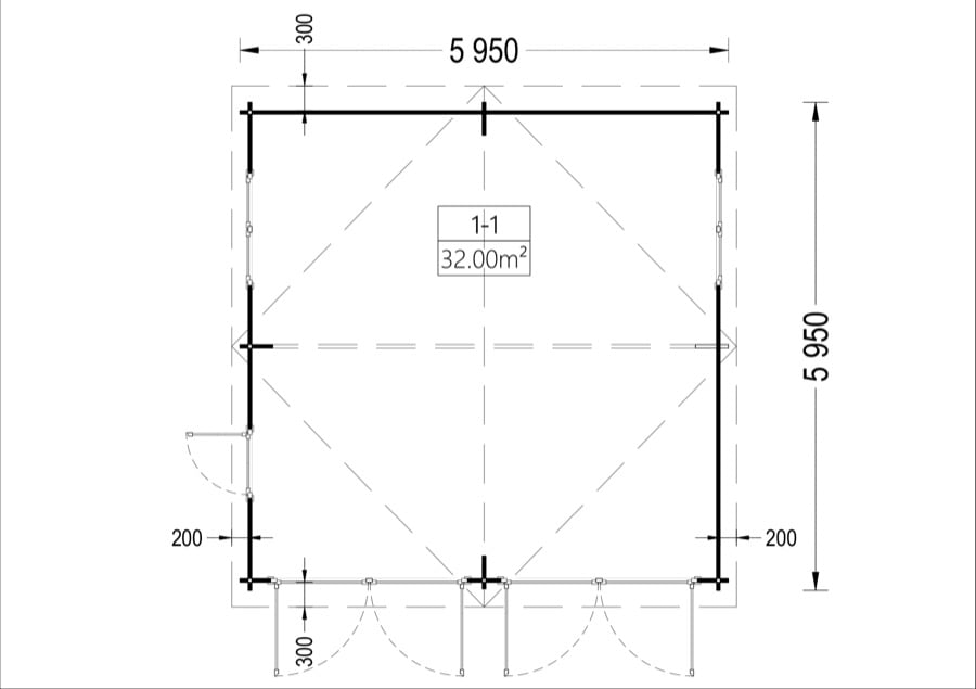
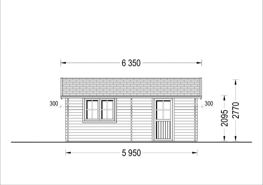
Garaj din lemn Dublu (44 mm ) 6×6 m
Impartaseste acest garaj din lemn cu dragul tau. Este ideal pentru familiile cu doua masini. Singurii nu trebuie sa se simta neglijati – acest garaj din lemn este facut si pentru masinile dvs. sportive. Toate garajele noastre cu pereti de 44 mm grosime sunt echipate cu geamuri termopan si balamale de cea mai inalta calitate.
Livrarea in 8-9 saptamani
Pretul include
Oferta mai avantajoasa?
6.257,00 €
Descriere
La fel ca toate garajele noastre din lemn, Garaj din lemn Dublu (44 mm ) 6x6 m are un acoperis armat: montanti de 66 mm grosime si 3 cadre triunghiulare care contribuie la stabilitatea structurii, in timp ce triunghiul central nu numai ca elimina riscul de prabusire, dar ofera o protectie suplimentara in caz de grele incarcaturi (zapada, furtuni etc.) si evenimente seismice.
Punctele forte ale modelului Garaj din lemn Dublu (44 mm ) 6x6 m
• Puteți parca cu ușurință orice vehicul în garaj, atât mașini mici, cât și jeep-uri.
• Aspectul CLASIC DUO garantează spațiu suplimentar pentru a fi folosit ca depozit sau pentru unele plante.
• Designul său adaugă o notă de eleganță prin armonizarea cu împrejurimile sale.
• O structură care va dura: lemn de esență moale cu creștere lentă, grinzi cu nut si feder chertate și construcție robustă.
• Gararea la mașini va fi foarte ușoară, fiind complet protejată de condițiile meteorologice nefavorabile.
Actualizam permanent lista de produse din aceasta categorie, va invitam sa verificati gama completa aici
Va invitam sa ne contactati pentru orice informatii, eventuale modificari sau personalizari.
Toate casele noastre vin sub forma de kit Do it Your self, adica usor de instalat.
Toate piesele ce compun garajul din lemn sunt etichetate si numerotate individual, iar manualul de asamblare este lesne de inteles.
Comenzile se fac prin formularul disponibil pe site, telefonic sau pe mail.
Va asteptam la showroom sau contactati-ne telefonic
Specificatii
| Înalțime la coamă | |
|---|---|
| Material | |
| Grosime perete | |
| Suprafață acoperiș | |
| Ușă (lățime x înălțime) | |
| Înălţime pereți | |
| Tratament pentru lemn | |
| Sageac | |
| Material pentru acoperiș |
Calitate si beneficii

Întăriri anti furtună incluse
Structuri rezistente la furtuni pentru toate garajele și depozitele. Construcția va fi mai stabilă la vânturi puternice sau furtuni violente.

Pereții opuși sunt interschimbabili!
Majoritatea caselor noastre au ziduri opuse interschimbabile. Doriți să plasați fereastra din stânga pe partea dreaptă? Nimic mai simplu!

Geam dublu
Pentru toate modelele cu o grosime a peretelui de 44 mm, oferim gratuit ferestre și uși cu geam termopan.

Construim avand grija de natura
Casele noastre sunt realizate cu cherestea din păduri certificate FSC. Achiziționând unul dintre produsele noastre, puteți fi siguri că nicio pădure nu a fost deteriorată.
Vezi toate calitatile
Asamblarea nu necesită neapărat multe cuie, șuruburi … Feroneria necesara pentru asamblare va fi la dispoziția dumneavoastră într-o pungă de plastic. Toate casele și casuțele noastre sunt echipate cu o podea groasă de 20 mm. Doar garajele sunt livrate fără podea.
Feronerie inclusa

Podea inclusa (cu excepția garajelor)
Grinzile noastre tratate in autoclave de 70 mm x 50 mm oferă o bază solidă,fiind o condiție esențială pentru a garanta longevitatea structurii dvs. Grinzile sunt prevăzute pentru modelele cu podea. Structură din lemn dubla cu izolație interioară.
Fundație de calitate garantată

Structură dublă izolată
Atenție
Unele produse pot necesita autorizație de la primăria dumneavoastră. Prin urmare, vă rugăm să întrebați în prealabil la biroul tehnic local. Vă rămânem la dispoziție pentru informații suplimentare despre documentația care trebuie prezentată. Contactați-ne la numărul suprapus!
Garanție și asistență
Geamuri duble gratuite pentru clădiri și mai puternice! Acoperiș și pardoseală cu Nut și Feder inclus pentru rezistență durabilă. Calitate garantată. Pereții opuși sunt interschimbabili. carcasă interioară solidă și robustă pentru un acoperiș mult mai sigur. Încuietori sigure și balamale rezistente Folosim doar sticlă de calitate – fără plastic! Livrare convenabilă, calitate dovedită, servicii atente și utile pentru clienți.
Serviciul pentru clienți este disponibil în fiecare zi de luni până vineri, de la 8:00 la 17:00. Vă garantăm un serviciu complet pentru orice problemă care apare înainte și după livrare. Vom înlocui sau repara orice piese defecte sau lipsă. Dacă aveți îndoieli cu privire la modul de montare a casei dvs., ne puteți contacta oricând și vă vom ajuta să găsiți cea mai bună soluție. Serviciul este complet și la dispoziția dvs. de la acoperiș până la ultimul șurub de înșurubat!
Instrucțiuni de asamblare
Aveți nevoie de ajutor pentru asamblare?
Partenerii noștri de asamblare cu înaltă calificare vor fi bucuroși să instaleze pentru dvs. orice clădire din gama noastră. Vă rugăm să rețineți că prețul instalării este plătibil direct profesioniștilor montanți după finalizarea instalării.
Toate piesele sunt marcate cu precizie pentru a facilita identificarea cărei părți aparține.





